- 定做培养基/定制培养基
- 颗粒培养基
- 标准菌株生化鉴定试剂盒
- 预灌装即用型成品培养基
- 2025年版中国药典
- 促销/特价商品
- 院感/疾控/体外诊断/采样管
- 样品采集与处理(均质)产品
- 按标准检索培养基
- 模拟灌装用培养基
- 干燥粉末培养基
- 培养基添加剂/补充剂
- 生化反应鉴定管
- 染色液等配套产品
- 对照培养基/标准品
- 实验耗材与器具
- 生化试剂/化学试剂
- 菌种鉴定服务
关于无菌车间厂房的微生物风险评估
山东拓普生物工程有限公司
Shandong Tuopu Biol-Engineering Co.,Ltd
关于无菌车间厂房的微生物风险评估
Microbiological Risk Assessment Report
for
Sterile Plant
Prepared by/Department
Microbiological Lab Analyst/QAF
Signature
Date
Approved by/Department
Microbiological Lab First Line Manager/QAF
Signature
Date
Approved by/Department
Project Manager/AS&T
Signature
Date
Approved by/Department
QA Manager/QAF
Signature
Dat
根据中国GMP2010版要求,现有无菌车间对19(B级区) ,20(B级区) ,23(C级区)号房间的空调系统进行了改造。由于此次改造涉及B/C级区的空调系统,因此必须对改造可能引起的潜在风险进行相应的分析评估,以确认恢复生产以后产品质量水平仍然可以得到有效保证。
同时根据中国新版GMP的要求需要对针剂生产所有区域进行风险评估,为环境验证方案的设计和环境监控流程的设置提供依据。
微生物实验室负责评估报告的撰写,QA和项目小组负责批准本报告。
中国GMP(现行版)
ISO14644
根据现有改造后厂房设计图纸,无菌车间包括A,B级区背景下的A级送风,B,C,C级区背景下的A级送风,E六个级别的洁区。在这些洁区进行的所有活动必须符合中国GMP的要求。
《药品生产质量管理规范》2010修订版(附录1:无菌药品):
第九条-第十条:
A级:洁净区空气悬浮粒子的动态和静态级别均为ISO 4.8,以≥5.0μm的悬浮粒子为限度标准,A级洁净区监测的频率及取样量,应能及时发现所有人为干预、偶发事件及任何系统的损坏。
A级送风环境:应当至少符合A级区的静态要求。
B级:指无菌配制和灌装等高风险操作A级洁净区所处的背景区域。B级洁净区(静态)的空气悬浮粒子的级别为ISO 5,动态级别为ISO7。
C级和D级:指无菌药品生产过程中重要程度较低操作步骤的洁净区。对于C级洁净区(静态和动态)而言,空气悬浮粒子的级别分别为ISO 7和ISO 8。对于D级洁净区(静态)空气悬浮粒子的级别为ISO 8。
第十一条 应当对微生物进行动态监测,评估无菌生产的微生物状况。监测方法有沉降菌法、定量空气浮游菌采样法和表面取样法(如棉签擦拭法和接触碟法)等。动态取样应当避免对洁净区造成不良影响。成品批记录的审核应当包括环境监测的结果。
对表面和操作人员的监测,应当在关键操作完成后进行。在正常的生产操作监测外,可在系统验证、清洁或消毒等操作完成后增加微生物监测。
下文将根据区域或房间不同的设置和功能,具体分析每个区域或房间的风险来源,并制定相对应的监测措施。
本次风险评估工具将采用ICHQ9中FEMA的标准方法
严重性:过程中对产品质量或法规的影响有多大?严重性打分从1~5分
发生的可能性:过程中这些故障发生的机率多大?可能性打分从1~5分
发现的可能性:如果故障发生了,有多大的机率可以被发现?打分从1~5分
Risk RPN:严重性,可能性以及可发现性的乘积,记录结果
严重性
分级
描述
理由
5
非常严重
会直接影响产品质量或不符合GMP规范.
4
高
很有可能造成产品质量影响或不符合GMP规范
3
中
对于产品质量和GMP规范有风险.
2
低
对于产品质量和遵守GMP规范存在较低的风险,能够根据一些理论或者经验推断出这个偏差对于质量没有风险,但无法完全肯定。或者偏差发生后第一时间,通过少量即时措施即可纠正
1
很低
对于产品质量和遵守GMP规范没有任何影响
发生的可能性
分级
描述
理由
5
一直发生
偏差一直在发生,例如每批都发生
4
经常发生
偏差会经常重复发生,例如该偏差2-3批都会发生。
3
偶然发生
偏差可能重复发生,例如3个月内曾经发生过
2
几乎不发生
偏差可能不重复发生,例如 6个月内没有重复发生
1
不可能发生
偏差几乎不重复发生,例如1年内没有重复发生
发现的可能性
分级
描述
理由
5
不可能被发现
偏差几乎不可能被发现,通常使用的系统或者方法不足以发现发生的偏差,当偏差在一定程度上被发现的时候,这个发现被认为是很偶然的机会。
4
很难被发现
偏差有较大风险不被发现,这一类偏差不一定能够在日常检测过程,或者批生产记录中被发现。这一类项目在日常生产过程中检查频率很低,大都采用抽样的方法,AQL值计算,并且是人工检查。
3
可能被发现
有可能被发现,一般微生物取样适合。
2
较大可能被发现
偏差在生产过程中不是必须检测或者检查的项目,但是一般员工会注意到,或者这个偏差是必须检查的项目,但检查通常是人工进行,或者该偏差检查采用一些统计的方法进行检查,不采用全检。
1
肯定能被发现
偏差发生时现象非常明显,不可能被忽视。一般该类偏差在日常生产过程都进行全检。
接受标准
风险
RPN值范围
控制方式
Low
1 <= RPN <= 10
不需要粒子频繁监控,不需要微生物批监控
Moderate
12 <= RPN <= 24
粒子频繁监控,微生物批监控
High
25 <= RPN
粒子连续监控,微生物批监控
Note: RPN值是严重性,可能性和可发现性的乘积
风险评估列表
区域
工艺描述
分级
可能存在的风险
现有的控制措施
风险打分
结论
严重性
发生的可能性
发现的可能性
Risk RPN
灌装线
通过层流台的设计在灌装线进行无菌灌装
Grade A
A级区,产品敞开暴露,被微生物污染的风险很高
粒子污染:
高效过滤器消除粒子
半年监测高效过滤器
微生物污染:
层流台的设计
完善的层流台操作sop
PST的数据支持
5
2
3
30
粒子连续监控,微生物批监控
19号房收集台
将已半压塞的产品排放成一框并传递至转移小车
Grade A
微生物污染和粒子污染
粒子污染:
高效过滤器消除粒子
半年监测高效过滤器
微生物污染:
该区域基本没有开门干扰,产品属于半压塞状态
PST中挑战数据
4
2
3
24
粒子频繁监控,微生物批监控
冻干机前装载LAF
将半压塞产品从转移小车传递至冻干机
Grade A
产品可能直接暴露在LAF下
粒子污染:
高效过滤器消除粒子
半年监测高效过滤器
微生物污染:
B级区操作sop
PST的数据支持
4
2
3
24
粒子频繁监控,微生物批监控
11-2号房层流台
用于灭菌后物品的存放,这些物品可能直接接触产品
Grade A
已灭菌产品可能造成粒子或微生物污染
粒子污染:
高效过滤器消除粒子
半年监测高效过滤器
微生物污染:
B级区操作sop
PST的数据支持
所有灭菌物品均有呼吸袋密封保证
3
2
3
18
粒子频繁监控,微生物批监控
7号房灭菌卸载层流台
用于灭菌后物品的存放,这些物品可能直接接触产品
Grade A
已灭菌产品可能造成粒子或微生物污染
粒子污染:
高效过滤器消除粒子
半年监测高效过滤器
微生物污染:
B级区操作sop
PST的数据支持
所有灭菌物品均有呼吸袋密封保证
3
2
3
18
粒子频繁监控,微生物批监控
10号房层流台
清洁剂的配置和存放
Grade A
配置过程可能存在二次污染
粒子污染:
高效过滤器消除粒子
半年监测高效过滤器
微生物污染:
配置操作sop
PST的数据支持
清洁剂的配置,不直接影响产品
3
2
3
18
不需要粒子频繁监控,不需要微生物批监控
19号房卸载层流
在卸载后卸载小车传输路径
Grade A air supply
under Grade B
卸载后产品直接暴露在层流下
粒子污染:
高效过滤器消除粒子
半年监测高效过滤器
微生物污染:
产品已经全压塞,未密封产品均会被照相系统剔除
转移路径完全在LAF的保护下
3
2
3
18
粒子频繁监控,微生物批监控
20号房压盖产品上料间
全压塞产品转移至压盖线传送轨道
Grade A air supply
under Grade B
卸载后产品直接暴露在层流下
粒子污染:
高效过滤器消除粒子
半年监测高效过滤器
微生物污染:
产品已经全压塞,未密封产品均会被照相系统剔除
转移路径完全在LAF的保护下
3
2
3
18
粒子频繁监控,微生物批监控
压盖线及产品轨道上方保护层流
全压塞产品至压盖前的传递路径
Grade A air supply
under Grade C
产品直接暴露在层流下
粒子污染:
高效过滤器消除粒子
半年监测高效过滤器
微生物污染:
产品已经全压塞,未密封产品均会被照相系统剔除
转移路径完全在LAF的保护下
3
2
3
18
粒子频繁监控,微生物批监控
14号房灌装背景间
灌装线的背景环境
Grade B
在该区域有大量B级区人员活动,是灭菌后物品转移经过区域,没有直接接触产品可能,但对人员可以通过该区域进入A级区。
粒子污染:
高效过滤器消除粒子
半年监测高效过滤器
微生物污染:
B级区操作sop
PST的数据支持
4
2
3
24
粒子频繁监控,微生物批监控
7号房
灭菌釜卸载间
灭菌釜物品出料区域
Grade B
卸载后有较多的人员活动,有粒子和微生物造成二次污染
粒子污染:
高效过滤器消除粒子
半年监测高效过滤器
微生物污染:
卸载操作sop
PST的数据支持
3
2
3
18
粒子频繁监控,微生物批监控
15号房
B级区更衣间
穿上B级区衣服
人员更衣及无菌行为
Grade B
粒子和微生物污染会对人员更衣造成二次污染
粒子污染:
高效过滤器消除粒子
半年监测高效过滤器
微生物污染:
人员更衣的sop
PST的数据支持
人员资质确认
3
2
3
18
粒子频繁监控,微生物批监控
17号房
B级区退出间
人员从B级区退出至C级区的缓冲间
Grade B
粒子和微生物污染会对环境造成二次污染
粒子污染:
高效过滤器消除粒子
半年监测高效过滤器
微生物污染:
人员更衣的sop
分别设置的房间防止交叉污染
3
1
3
9
不需要粒子频繁监控,不需要微生物批监控
10号房
清洁剂配置间
配置A/B级区的清洁剂
Grade B
粒子和微生物污染会对环境造成二次污染
粒子污染:
高效过滤器消除粒子
半年监测高效过滤器
注射用水0.22um过滤
微生物污染:
注射用水0.22um过滤并进行完整性测试
PST数据支持
3
1
3
9
不需要粒子频繁监控,不需要微生物批监控
13号房
物流缓冲间
B级区物流缓冲间
Grade B
粒子和微生物污染会对环境造成二次污染
粒子污染:
高效过滤器消除粒子
半年监测高效过滤器
微生物污染:
物料传递消毒sop
PST数据支持
3
1
3
9
不需要粒子频繁监控,不需要微生物批监控
11-2号房
灌装物品存放间
将灌装物品存放至层流下
Grade B
粒子和微生物污染会对环境造成二次污染
粒子污染:
高效过滤器消除粒子
半年监测高效过滤器
微生物污染:
物流传递sop
PST数据支持
3
1
3
9
不需要粒子频繁监控,不需要微生物批监控
压盖间
23号房
压盖产品传递的背景环境
Grade C
粒子和微生物污染
粒子污染:
高效过滤器消除粒子
每年监测高效过滤器
微生物污染:
产品已经全压塞,未密封产品均会被照相系统剔除
转移路径完全在LAF的保护下
3
1
3
9
不需要粒子频繁监控,不需要微生物批监控
12号房
配液房
从投料至配液过程
Grade C
配液过程有数次会打开配液罐,会直接影响产品溶液
粒子污染:
高效过滤器消除粒子
每年监测高效过滤器
微生物污染:
配液操作sop
PST数据支持
配液至储液罐有过滤器保证
过滤前有生物负载数据支持
3
1
3
9
不需要粒子频繁监控,不需要微生物批监控
16号房
B/C级区更衣缓冲间
C级区至B级区及B级区至C级区的更衣缓冲间
Grade C
粒子和微生物会对环境造成污染
粒子污染:
高效过滤器消除粒子
每年监测高效过滤器
微生物污染:
人员更衣的sop
3
1
3
9
不需要粒子频繁监控,不需要微生物批监控
22号房
E/C级区的更衣缓冲间
Grade C
粒子和微生物会对环境造成污染
粒子污染:
高效过滤器消除粒子
每年监测高效过滤器
微生物污染:
人员更衣的sop
不会直接影响至B级区域
3
1
3
9
不需要粒子频繁监控,不需要微生物批监控
3号房
C级区大区域
C级区清洗间,灭菌准备间
Grade C
粒子和微生物会对环境造成污染,并且存在大量生产活动
粒子污染:
高效过滤器消除粒子
每年监测高效过滤器
微生物污染:
清洗操作sop
灭菌前物品准备sop(所有进入B级区产品均会通过灭菌釜灭菌)
3
1
3
9
不需要粒子频繁监控,不需要微生物批监控
无菌洗衣房
清洗B/C级区衣物和清洁用品
Grade C
粒子和微生物会对环境造成污染
粒子污染:
高效过滤器消除粒子
每年监测高效过滤器
微生物污染:
人员更衣的sop
3
1
3
9
不需要粒子频繁监控,不需要微生物批监控
11-1号房
C级区存放间
C级区物品存放间
Grade C
粒子和微生物会对环境造成污染
粒子污染:
高效过滤器消除粒子
每年监测高效过滤器
微生物污染:
C级区存在物品sop
不会直接影响至B级区域
2
1
3
6
不需要粒子频繁监控,不需要微生物批监控
18号房
设备服务间
C级区地漏
Grade C
粒子和微生物会对环境造成污染
粒子污染:
高效过滤器消除粒子
每年监测高效过滤器
微生物污染:
无人员活动
不会直接影响至B级区域
2
1
3
6
不需要粒子频繁监控,不需要微生物批监控
8号房
C级区物品存放间
放置衣物或清洁用品
Grade C
粒子和微生物会对环境造成污染
粒子污染:
高效过滤器消除粒子
每年监测高效过滤器
微生物污染:
无人员活动
不会直接影响至B级区域
2
1
3
6
不需要粒子频繁监控,不需要微生物批监控
9号房
C级区物品存放间
放置衣物或清洁用品
Grade C
粒子和微生物会对环境造成污染
粒子污染:
高效过滤器消除粒子
每年监测高效过滤器
微生物污染:
无人员活动
不会直接影响至B级区域
2
1
3
6
不需要粒子频繁监控,不需要微生物批监控
1号房
物流缓冲间
E/C级区物料缓冲间
Grade C
粒子和微生物会对环境造成污染
粒子污染:
高效过滤器消除粒子
每年监测高效过滤器
微生物污染:
物料传递sop
不会直接影响至B级区域
2
1
3
6
不需要粒子频繁监控,不需要微生物批监控
2号房
E/C级区的更衣缓冲间
Grade C
粒子和微生物会对环境造成污染
粒子污染:
高效过滤器消除粒子
每年监测高效过滤器
微生物污染:
人员更衣的sop
不会直接影响至B级区域
2
1
3
6
不需要粒子频繁监控,不需要微生物批监控
4号房
清洗机间后设备服务间,基本无人员活动
Grade C
粒子和微生物会对环境造成污染
粒子污染:
高效过滤器消除粒子
每年监测高效过滤器
微生物污染:
无人员活动
不会直接影响至B级区域
2
1
3
6
不需要粒子频繁监控,不需要微生物批监控
5号房
E/C级区的更衣缓冲间
Grade C
粒子和微生物会对环境造成污染
粒子污染:
高效过滤器消除粒子
每年监测高效过滤器
微生物污染:
人员更衣的sop
不会直接影响至B级区域
2
1
3
6
不需要粒子频繁监控,不需要微生物批监控
24号房
洗瓶间
过滤的注射用水清洗西林瓶,过滤的压缩空气吹干西林瓶
Grade E
可能存在微生物和粒子污染
粒子污染:
0.22um过滤注射用水和压缩空气
每两年监测高效过滤器
微生物污染:
在灭菌隧道验证去热原
3
1
3
9
不需要粒子频繁监控,不需要微生物批监控
21号房
压盖后产品收集间
Grade E
可能存在微生物和粒子污染
粒子污染:
高效过滤器消除粒子
每两年监测高效过滤器
微生物污染:
已经压盖完全,不影响产品质量
不会直接影响至B级区域
2
1
3
6
不需要粒子频繁监控,不需要微生物批监控
25号房
针剂物料存放间
Grade E
可能存在微生物和粒子污染
粒子污染:
高效过滤器消除粒子
每两年监测高效过滤器
微生物污染:
所有物料均会灭菌处理,不影响产品质量
不会直接影响至B级区域
2
1
3
6
不需要粒子频繁监控,不需要微生物批监控
27号房
设备服务间缓冲间
Grade E
可能存在微生物和粒子污染
粒子污染:
高效过滤器消除粒子
每两年监测高效过滤器
微生物污染:
不影响其它区域
2
1
3
6
不需要粒子频繁监控,不需要微生物批监控
结论:按照风险评估的打分对所有区域或房间进行风险分析,并且根据GMP的要求设计环境监控方案,在B/C/E级区,一些不需要进行微生物监控的房间,根据分数的高低选择不同的监控频率。
根据上述风险评估的结论对不同区域或房间进行环境监控方案的设计,在设计过程中需注意以下几点
(1) 该监测方案是在正常生产过程中进行的,如果有由于故障或其他原因产生的异常干扰活动,根据活动情况和可能的污染分析制定针对性的取样方案。一般评估影响的环境包括:表面微生物、空气浮游菌或空气悬浮粒子进行监测。如果维修完成清洁前立即取样,确认污染程度。视维修的程度等实际情况进行相应表面取样(接触碟法和擦拭法)、空气浮游菌或空气悬浮粒子的监测。
(2) 在静态再验证中的监测方案和无生产活动时的监测方案见每节后的备注说明。
A级区包括14号房间和19号房间灌装和收集台区域,以及冻干机前的层流区域的A级区。此外7号房间、10号房和11-2号房间设有层流台,也被认为是B级背景下的A级区。
14号房间和19号房间灌装和收集台区域的静态状态应该是装机完成,设备空转的状态。
A级区的监测除了对操作人员表面微生物取样适用附录1的B级区标准外,其他都适用A级区标准。
区域
监测方案
粒子
频率
微生物
频率
14号房灌装线
层流内空气悬浮粒子
连续
对装机环境包括:人员手套和无菌衣表面微生物、层流内空气浮游菌。
生产时:进行所有人员监测,微生物人员进出层流监测后增加双手取样;随机抽取和增加装机人员双手及无菌衣表面监测;从装机开始不超过4小时连续更换沉降碟直至生产结束;使用位于灌装层流内2台MD8浮游菌监测设备,在生产前中后三个阶段对层流内浮游菌进行监测。对灌装针头、胶塞、西林瓶等与产品直接接触区域进行监测:每批生产结束时轮流监测6个针头,视情况增加监测点;每批生产结束后对胶塞传送轨道和胶塞转盘2处监测点表面进行监测,对西林瓶轨道及附属部件3处监测点进行监测。对蓝色传送带处、灌装处、半压塞处的门把手及门内侧进行6处监测点表面微生物监测;对灌装台面及灌装站后方墙面3处监测点进行表面微生物监测。
每批生产
19号房收集台
层流内空气悬浮粒子
覆盖生产过程,灌装前、中、后
对收集台表面、收集台门内侧3处监测点
每批生产
19号房冻干机前层流
层流内空气悬浮粒子
覆盖生产过程,灌装前、中、后
转移小车内外表面4处监测点分别进行表面微生物监测
每批生产
11-2号房层流台
层流内空气悬浮粒子
生产中
放置接触碟对浮游菌进行取样
对层流台内部进行表面取样或对层流台地面进行取样
每批生产
7号房层流台
层流内空气悬浮粒子
生产中
放置接触碟对浮游菌进行取样
对层流台内部进行表面取样或对层流台地面进行取样
每批生产
10号房层流台
层流内空气悬浮粒子
生产中
放置接触碟对浮游菌进行取样
对层流台内部进行表面取样或对层流台地面进行取样
每批生产
备注:在洁区建立时,所有A级区都必须进行静态条件下的环境验证。如果没有生产活动,则每周必须进行至少一次静态监测。
B级背景下的A级送风区域包括19号房间出料区域和20号房间待压盖产品储存区域。
这一区域的静态监测适用A级区标准,应进行粒子和浮游菌的取样。动态监测适用B级区标准。
区域
监测方案
粒子
频率
微生物
频率
19号房间
空气悬浮粒子
生产中
在生产时监测空气浮游菌、表面微生物、各房间墙面地面微生物。
每批生产
20号房间
空气悬浮粒子
生产中
在生产时监测空气浮游菌、表面微生物、各房间墙面地面微生物。
每批生产
备注:在洁区建立时,该区域必须进行静态条件下的环境验证。在每批生产或模拟生产时都必须进行动态监测。如果没有生产活动,则每周必须进行至少一次静态监测。
这一区域的监测都适用B级区标准。
区域
监测方案
粒子
频率
微生物
频率
B级区(1)(14号无菌灌装间,19号和20号产品转移间,7号灭菌釜卸载间,15号更衣间)
空气悬浮粒子
生产中
空气浮游菌、设备和墙面等表面微生物、各房间地面等微生物进行监测。
批生产时所有B级区人员必须进行无菌衣及双手监测取样,进入A级区后随机增加手样和无菌衣监测,有异常人员行为增加取样。
每批生产
B级区(2)(10号清洁间,11-2号清洁用品储存间间,13号物流缓冲间,17号退出更衣间)
空气悬浮粒子
每周
批生产时所有B级区人员必须进行无菌衣及双手监测取样。
每批生产
空气浮游菌、设备和墙面等表面微生物、各房间地面等微生物进行监测。
每周
备注:在洁区建立时,B级区必须进行静态条件下的环境验证。
B级区(1)在每批生产或模拟生产时都必须进行动态监测。如果没有生产活动,则每周必须进行至少一次静态监测。
B级区(2)每周必须进行至少一次静态或动态监测。
C级背景下的A级送风区域专指23号房间压塞产品传送区。
该区域的静态状态应该是设备空转,传送线开动的状态,不进行压盖操作,也不要求有产品在线上。 动态状态是指处于生产活动或模拟生产活动中,在23号房间有人员活动,但并不要求有人员进入该区域进行特定干扰活动。
这一区域的静态监测空气悬浮粒子适用A级区标准,静态下的微生物监测适用C级区标准。动态监测适用C级区标准。
区域
监测方案
粒子
频率
微生物
频率
压盖线层流
空气悬浮粒子
生产中
空气浮游菌和表面微生物。
每批生产
备注:在洁区建立时,该区域必须进行静态条件下的环境验证。在每批生产或模拟生产时都必须进行动态监测。如果没有生产活动,则每周必须进行至少一次静态监测。
该区域除了无菌车间的C级区以外还包括位于非无菌车间的无菌洗衣房(Room207M2)。
在C级区,由于主要设备(灭菌釜,配液系统和洗瓶机)在运行时都处于密闭状态,对环境干扰较小,所以静态监测时无需这些设备开启)。动态监测时除无菌洗衣房外C级区内必须有人员活动。对于无菌洗衣房,由于空间小,而且监测时必然有取样人员在现场,因此不要求动态监测时还有其他人员在洗衣房内活动。
C级区级区的监测都适用C级区标准。
区域
监测方案
粒子
频率
微生物
频率
人员和物料进出环境:
16号房和22号房
空气悬浮粒子
每周
空气浮游菌和表面微生物
每周
压盖间23号房
空气悬浮粒子
每周
空气浮游菌和表面微生物
每周
配料间12号房
空气悬浮粒子
每周/每月
空气浮游菌和表面微生物
每周/每月
无菌洗衣房
空气悬浮粒子
R207M2
每周
空气浮游菌和表面微生物
R207M2
每周
空气悬浮粒子
R208M2
每月
空气浮游菌和表面微生物
R208M2
每月
3号房
空气悬浮粒子
每周
空气浮游菌和表面微生物
每周
其他无菌C级区
空气悬浮粒子
每月
空气浮游菌和表面微生物
每月
备注:在洁区建立时,C级区必须进行静态条件下的环境验证。
由于C级区活动对产品微生物污染风险影响较小,因此不需要进行每批生产时都监测。其中12号配液间,23号压盖间,16号更衣间,3号清洁/灭菌间和无菌洗衣房每周至少进行一次动态监测,其他房间每月至少进行一次动态监测。
区域
监测方案
粒子
频率
微生物
频率
24号房洗瓶(E级区)
空气悬浮粒子
每周
每月
空气浮游菌和表面微生物
每周
每月
其他房间
空气悬浮粒子
每季度
空气浮游菌和表面微生物
每季度
附录1:无菌生产车间环境监测接受标准
Hygiene Class
洁净级别
Non-viable particulates
空气悬浮粒子
Counts/m3 (ft3)
Active Air sample
空气浮游菌
CFU/m3
Microbe on Surface
表面微生物
CFU/plate (25cm2)
Settle plates
(diam. 90mm)
90 mm沉降碟 CFU/4hours
Personnel monitoring
人员监测
(average CFU/ glove or 25cm2)
At Rest
静态
In Operation
动态
At rest
静态
In operation
动态
At rest
静态
In operation动态
At rest
静态
In operation
动态
Glove
手套
Garment+goggle
无菌服+眼罩
>=0. 5mm
>=5mm
>=0. 5mm
>=5mm
A
3 500
(100)
20
3 500
(100)
20
1/<1
1/<1
1/<13)
3/<13)
1/<1
1/<1
3/2
3/2
B
3 500
(100)
29
350 000
(10 000)
2900
(80)
10/5
25/10
Normal: 5/1
Floor: 10/2
Normal: 5/3
Floor: 10/5
5/1
10/5
C
350 000
(10 000)
2900
(80)
350 0000
(10 0000)
29 000
(800)
100/50
200/100
Normal:10/5 Floor: 20/10
Normal: 30/15
Floor: 50/25
10/5
20/10
-
-
E
350 0000
(10 0000)
29 000
(800)
-
-
200/100
300/200
Normal: 50/25
Floor: 100/50
-
-
-
-
Values expressed as value 1/value 2 are individual/average.
表中数值1/数值2表示个别值/平均值。
2)In addition to the maximum permitted CFU limits in the table above, no presence of molds will be permitted in HC A, B.
A、 B级区除了达到上述限度外,还不得检出霉菌。
3) When surface sample with swab in Grade A area, the acceptance criteria are no growth.
当采用棉签法进行A级区表面取样时,其接受标准为不得生长。
附录2:批生产无菌生产车间环境监测取样说明
批无菌灌装14号房间环境监测取样平面图
Sampling map of environmental monitoring in room 14 during batch production
该房间取样点分为:
悬浮粒子测试点(选择生产过程中人员活动较频繁处作为取样点,分别为胶塞加料处附近和控制面板附近)
浮游菌取样点(房间内区域选择生产过程中人员活动较频繁处作为取样点,分别为胶塞加料处附近和控制面板附近;灌装线层流内区域选择生产过程中人员干扰活动较多处作为取样点,分别为出瓶传送带处附近和近灌装针头附近)
沉降菌取样点(房间内区域选择生产过程中人员活动较多的书写台处作为取样点;灌装线层流内区域选择生产过程中人员干扰活动较多处作为取样点,分别为出瓶传送带处附近、近灌装针头和半压塞处附近)
其他还包括表面接触碟取样点,墙面接触碟取样点,地面接触碟取样点以及表面棉签法取样点
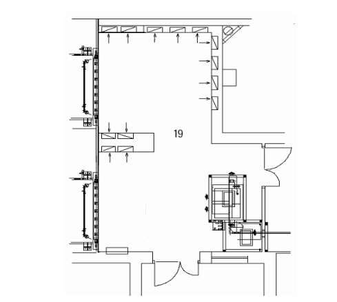
批无菌灌装19号房间环境监测取样平面图
Sampling map of environmental monitoring in room 19 during batch production
该房间取样点分为:
悬浮粒子测试点(房间内区域选择生产过程中除LAF外人员活动区域处作为取样点;层流内区域选择生产过程中人员干扰活动较频繁处作为取样点,分别为冻干机前LAF下和收集台LAF内)
浮游菌取样点(房间内区域选择生产过程中除LAF外人员活动区域处作为取样点;层流内区域选择生产过程中人员干扰活动较频繁处作为取样点,分别为冻干机前LAF下和收集台LAF内)
沉降菌取样点(层流内区域选择生产过程中人员干扰活动较多的收集台LAF内作为取样点)。
其他还包括表面接触碟取样点,墙面接触碟取样点,地面接触碟取样点以及表面棉签法取样点。
批无菌灌装7号房间环境监测取样平面图
Sampling map of environmental monitoring in room 7 during batch production
该房间取样点分为:
悬浮粒子测试点(房间内区域选择生产过程中人员活动区域处作为取样点)
浮游菌取样点(房间内区域选择生产过程中人员活动区域处作为取样点)
沉降菌取样点(层流内区域选择生产过程中人员干扰活动较多的收集台LAF内作为取样点)
其他还包括表面接触碟取样点,墙面接触碟取样点,地面接触碟取样点以及表面棉签法取样点。
批无菌灌装15号房间环境监测取样平面图
Sampling map of environmental monitoring in room 15 during batch production
该房间取样点分为:
悬浮粒子测试点(房间内区域选择生产过程中人员活动区域处作为取样点)
浮游菌取样点(房间内区域选择生产过程中人员活动区域处作为取样点)
沉降菌取样点(选择生产更衣过程中人员活动较多的房间内侧台面和房间外侧凳面作为取样点)
其他还包括表面接触碟取样点,墙面接触碟取样点,地面接触碟取样点以及表面棉签法取样点。
批无菌灌装20号房间环境监测取样平面图
Sampling map of environmental monitoring in room 23 during batch production
该房间取样点分为:
悬浮粒子测试点(房间内区域选择生产过程中人员活动区域处作为取样点)
浮游菌取样点(房间内区域选择生产过程中人员活动区域处作为取样点)
其他还包括表面接触碟取样点,墙面接触碟取样点,地面接触碟取样点以及表面棉签法取样点。
目 录
1. 目的
2. 职责
3. 参考文献
4. 评估标准
5. 评估方法
有明确的理由证明没有影响或者以往的偏差经过调查后证明对于质量或者GMP没有影响。
定期监测注射用水和压缩空气的质量
6.监测方案的设计
6.1 A级区
6.2 B级背景下的A级送风区域
6.3 B级区
6.4 C级背景下的A级送风区域
6.5 C级区
6.6 E级区
7. 附件



